

1、单选题:
建筑制图中规定,A0到A4图幅中装订边A=多少mm?
选项:
A: 20
B: 25
C: 30
D: 15
答案: 【 25】
2、单选题:
数字和字母应采用什么字体?
选项:
A: 长仿宋体
B: 直体
C: 斜体
D: 直体或斜体
答案: 【 直体或斜体】
3、单选题:
字母和数字采用斜体书写时,其斜度应与水平线成多少度夹角?
选项:
A: 90
B: 75
C: 45
D: 30
答案: 【 75】
4、单选题:
尺寸标注中尺寸数字表示的数值是什么含义?
选项:
A: 物体图中绘制的大小
B: 物体现实中实际大小
C: 与比例有关
D: 与绘图精度有关
答案: 【 物体现实中实际大小】
5、单选题:
一般情况下线性尺寸标注的起止符号采用什么表示?
选项:
A: 箭头
B: 中粗短斜线段
C: 圆圈
D: 小圆点
答案: 【 中粗短斜线段】
6、单选题:
比例一般注写在图名的什么地方?
选项:
A: 左侧
B: 右侧
C: 左上方
D: 右上方
答案: 【 右侧】
7、多选题:
下列选项中常用绘图工具有:
选项:
A: 铅笔
B: 三角板
C: 圆规
D: 圆珠笔
答案: 【 铅笔;
三角板;
圆规】
8、多选题:
为了表达图样的不同内容,须使用不同的线型和线宽的图线。实线分为:
选项:
A: 粗实线
B: 中粗实线
C: 细实线
D: 特细实线
答案: 【 粗实线;
中粗实线;
细实线】
9、判断题:
半径尺寸标注的起止符号为箭头
选项:
A: 正确
B: 错误
答案: 【 正确】
10、判断题:
直径尺寸标注应在尺寸数字前加注R
选项:
A: 正确
B: 错误
答案: 【 错误】
1、单选题:
室内设计制图主要讲述什么内容?
选项:
A: 识图
B: 绘图
C: 识图和绘图
D: 施工工艺流程
答案: 【 识图和绘图】
2、判断题:
学习室内设计制图可以提升空间思维能力、掌握基础识图绘图能力、培养科学严谨工作作风、良好的职业素养。
选项:
A: 正确
B: 错误
答案: 【 正确】
1、单选题:
丁字尺可以绘制什么线?
选项:
A: 垂直线
B: 水平线
C: 斜线
D: 曲线
答案: 【 水平线】
2、单选题:
丁字尺与三角板配合可以绘制什么线?
选项:
A: 垂直线、平行线
B: 垂直线
C: 平行线
D: 水平线
答案: 【 垂直线、平行线】
3、单选题:
书写汉字、字母、数字需要用哪种铅笔?
选项:
A: 软铅
B: 硬铅
C: 中性铅
D: 随意
答案: 【 中性铅】
4、单选题:
加深粗实线图线要使用什么铅笔
选项:
A: 软铅
B: 硬铅
C: 中性铅
D: 任意一种铅
答案: 【 软铅】
1、单选题:
比例的含义?
选项:
A: 图中尺寸:实际尺寸
B: 实际尺寸:图中尺寸
C: 长度尺寸:宽度尺寸
D: 长度尺寸:高度尺寸
答案: 【 图中尺寸:实际尺寸】
2、单选题:
汉字的字体采用
选项:
A: 宋体
B: 仿宋体
C: 长仿宋体
D: 楷体
答案: 【 长仿宋体】
3、单选题:
尺寸标注的组成要素是
选项:
A: 尺寸数字、尺寸线
B: 尺寸数字、尺寸线、尺寸界线
C: 尺寸数字、尺寸线、尺寸界线、尺寸终端
D: 尺寸数字、尺寸线、尺寸界线、箭头
答案: 【 尺寸数字、尺寸线、尺寸界线、尺寸终端】
4、单选题:
室内设计制图的平面图中标注的尺寸只有数量没有单位,按国家标准规定单位应该是
选项:
A: m
B: mm
C: cm
D: km
答案: 【 mm】
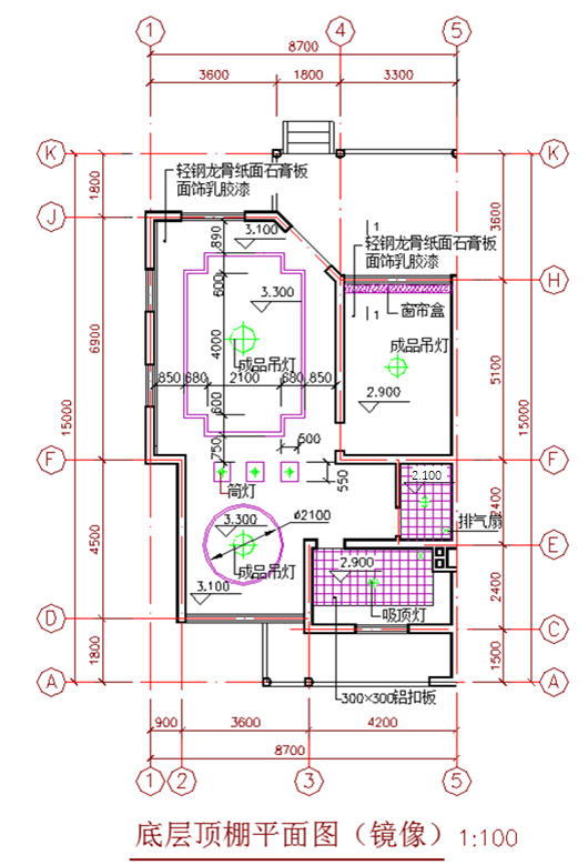
1、单选题:
1、 识读底层顶棚平面图,回答问题:底层顶棚平面图中顶棚标高最高为:

选项:
A: 3.300
B: 3.100
C: 2.900
D: 2.000
答案: 【 3.300】
2、单选题:
定位轴线编号从下至上用大写字母编写时,附加轴线编号1/B表示该轴在
选项:
A: B轴前
B: B轴后
C: A轴前
D: C轴后
答案: 【 B轴后】
3、单选题:
索引符号采用细实线绘制圆,直径为:
选项:
A: 10mm
B: 6mm
C: 3mm
D: 15mm
答案: 【 10mm】
4、单选题:
引出线绘制应使用
选项:
A: 粗实线
B: 细实线
C: 虚线
D: 点划线
答案: 【 细实线】
5、单选题:
指北针以细实线绘制的圆构成,圆的直径为
选项:
A: 12mm
B: 24mm
C: 14mm
D: 8mm
答案: 【 24mm】
6、单选题:
建筑装饰施工图上一般注明的标高是:
选项:
A: 绝对标高
B: 相对标高
C: 绝对标高和相对标高
D: 看图纸上的说明
答案: 【 相对标高】
7、多选题:
剖切到的墙的轮廓线型表示错误的是
选项:
A: 细实线
B: 中粗线
C: 粗实线
D: 点划线
答案: 【 细实线;
中粗线;
点划线】
8、多选题:
未剖到的家具陈设轮廓采用线型错误的是
选项:
A: 点划线
B: 粗实线
C: 细实线
D: 中粗线
答案: 【 点划线;
粗实线;
中粗线】
9、判断题:
平面布置图表达的内容中不需要表达家具陈设及标注
选项:
A: 正确
B: 错误
答案: 【 错误】
10、判断题:
识读立面图不需要根据图名与装饰平面图进行对照识读.
选项:
A: 正确
B: 错误
答案: 【 错误】
1、单选题:
定位轴线编号的圆圈用细实线绘制,圆圈直径
选项:
A: 8mm
B: 12mm
C: 4mm
D: 2mm
答案: 【 8mm】
2、单选题:
索引符号采用细实线绘制圆,直径为
选项:
A: 10mm
B: 6mm
C: 3mm
D: 15mm
答案: 【 10mm】
3、单选题:
详图与被索引的图样不在一张图纸内时,应用细实线在详图符号内画一水平直径,被索引的图纸的编号应注明在
选项:
A: 上半圆中
B: 下半圆中
C: 在圆中
D: 在圆外
答案: 【 下半圆中】
4、单选题:
室内立面
备案号:冀ICP备20010840号 2020-2099辉辉网络科技 All Rights Reserved